Каталог
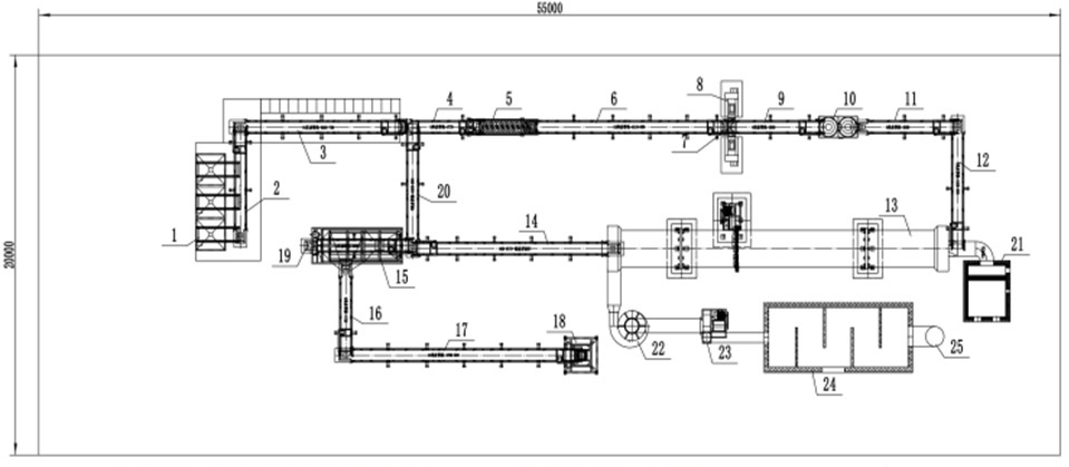
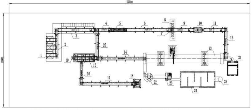
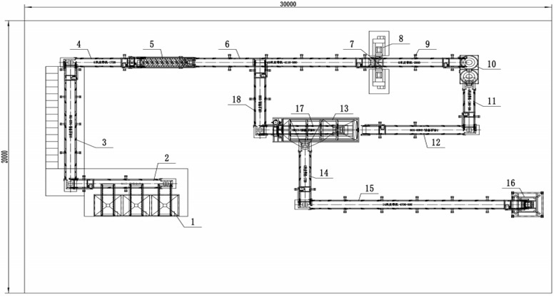
Линия грануляции для удобрений из глины SXJP
Общие характеристики
| Модель | SXJP 1 вариант комплектации | SXJP 2 вариант комплектации |
| Производительность (т/ч) | 5 | 5 |
| Площадь производственного цеха (м²) | Около 600 | Около 1100 |
| Общая мощность (кВт) | 155 | 199 |
Дозирующая машина
| Модель | SXJP-03 |
| Допустимая погрешность (%) | ±0,2 |
| Материал | Q235B |
| Толщина металла (мм) | 4 |
| Размер бункера (м) | 1,5 x 1,5 x 2,4 |
| Мотор (кВт) | 3 x 1,1 |
| Мощность (кВт) | 3,3 |
Двухвальный смеситель
| Модель | SXSZ-8030 |
| Производительность (т/ч) | 5-10 |
| Мощность (кВт) | 11 |
| Габаритные размеры (мм) | 3700 x 800 x 750 |
Валковый гранулятор
| Модель | SXDG-4T |
| Производительность (т/ч) | 4 (зависит от сырья) |
| Размер гранул (мм) | 3-10 |
| Материал валков | Легированная сталь |
| Мощность (кВт) | 37 |
| Габаритные размеры (мм) | 1960 x 980 x 1760 |
| Вес (т) | 2 |
Двухступенчатая полировочная машина
| Модель | SXPY-1000 |
| Производительность (т/ч) | 2-4 |
| Диаметр диска (мм) | 1000 |
| Мощность (кВт) | 2 x 5,5 |
Вибросито
| Модель | SXGS-1540 |
| Производительность (т/ч) | 5-8 |
| Мощность (кВт) | 5,5 |
Упаковочная машина
| Модель | TDYH-1000 |
| Диапазон упаковки (кг/мешок) | 500-2000 |
| Скорость (т/ч) | До 20 |
| Точность (%) | ±0,5 |
| Габаритные размеры (мм) | 4200 x 1800 x 3200 |
Ленточные конвейеры
| Модель | B500 |
| Ширина ленты (мм) | 500 |
| Материал | Резина |
| Мощность (кВт) | 4 |
| Общая длина (м) | 80 (11 комплектов) |
Сушильный барабан
| Модель | SXHG-1818 |
| Температура подачи (°C) | ≥300 |
| Мощность (кВт) | 22 |
| Габаритные размеры (мм) | 1820 x 18 370 x 3768 |
| Вес (т) | 17,2 |
Вентилятор
| Модель | 8C |
| Воздухопроизводительность (м³/ч) | 17 463-22 435 |
| Давление (Па) | 1726-2501 |
| Мощность (кВт) | 22 |
Шефмонтажные и пусконаладочные работы
При поставке данного оборудования возможен шеф-монтаж нашими инженерами.
Шефмонтажные работы являются одним из важных этапов при создании нового производства, позволяя правильно ввести в эксплуатацию оборудование, сохранив его работоспособность и надежность, исключить сбои и брак во время эксплуатации.
Этапы шефмонтажных работ
0
Осмотр производственной площадки
1
Монтаж оборудование на постоянное место
2
Проверка работоспособности всех узлов и агрегатов
3
Настройка оборудования
4
Изготовление пробной партии продукции
5
Инструктаж и практическое обучение персонала
6
Передача оборудования в производственный цикл
Запчасти для оборудования для производства удобрений
Программа по обеспечению запасными частями и расходными материалами позволяет обслуживать клиентов на высоком уровне. Постоянное изучение потребностей наших заказчиков дает возможность прогнозировать потребности клиентов и вовремя пополнять складские запасы наиболее востребованным ассортиментом. А в случае отсутствия необходимой запчасти на нашем складе ее всегда можно заказать на заводе-производителе.
Доставка
Доставка осуществляется во все города РФ и стран ЕврАзЭС. Мы организуем доставку любым удобным видом транспорта.
Перед передачей в перевозку все грузы проходят проверку на складе и составляется фотоотчет.
На все грузы наносится маркировка.
Собственный парк автотранспорта.
Собственный парк контейнеров.
Лизинг
Лизинг - это финансовый инструмент, позволяющий предприятию получить в пользование технику или оборудование, не отвлекая денежных средств из оборота компании.
Получив вашу заявку на лизинг, мы отправим ее на рассмотрение всем лизинговым компаниям, с которыми мы сотрудничаем. Вам останется лишь выбрать наиболее подходящее предложение.