Каталог
Оборудование для порошкового окрашивания и предварительной подготовки металлических изделий 3,2М
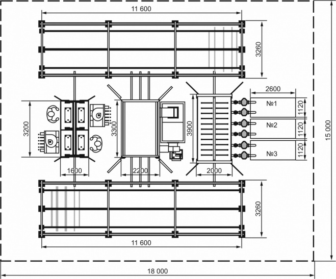
Камера для нанесения порошкового покрытия туннельного типа (двухпостовая)
| Тип | Туннельная | |
| Система фильтров рекуперации | 2 комплекта, каждый с 6 фильтрами | |
| Фильтр | Материал | Полиэстер |
| Тип крепления | Удобный для замены | |
| Система очистки | Пневматическая | |
| Количество (шт.) | 12 | |
| Размеры (мм) | 325 х 1000 | |
| Расход воздуха (м³/ч) | 4000 | |
| Источник питания | Электрический | |
| Напряжение (В) | 380/220 | |
| Частота (Гц) | 50-60 | |
| Номинальная мощность (кВт) | 5,5 | |
| Размеры (Д х Ш х В) (мм) | 3200 х 1520 х 1723 | |
| Размеры поста в открытом виде (мм) | 1520 х 1723 | |
| Вес (кг) | 1000 | |
Камера для предварительной обработки металлических изделий
| Материал | Нержавеющая сталь 304 | |
| Толщина вертикальных панелей / верхней панели (мм) | 1,5 | |
| Толщина нижней панели (мм) | 2 | |
| Толщина основания корпуса (мм) | 3 | |
| Система опрыскивания (автоматическая) (шт.) | 1 (с форсунками типа 6520/198) | |
| Количество водяных баков (шт.) | 3 | |
| Габаритные размеры водяного бака (мм) | 2600 х 1120 х 1100 | |
| Водяной/жидкостный насос | Модель | 80-160(I)A |
| Расход (м³/ч) | 93,5 | |
| Напор (м) | 28 | |
| Скорость (об/мин) | 2900 | |
| Мощность (кВт) | 11 | |
| Количество (шт.) | 6 | |
| Трубопровод водяных/жидкостных насосов | Количество (комплектов) | 6 |
| Управление | ПЛК | |
| Общая мощность (кВт) | 75 | |
| Габаритные размеры камеры (мм) | 3800 х 1600 х 2060 | |
Шефмонтажные и пусконаладочные работы
При поставке данного оборудования возможен шеф-монтаж нашими инженерами.
Шефмонтажные работы являются одним из важных этапов при создании нового производства, позволяя правильно ввести в эксплуатацию оборудование, сохранив его работоспособность и надежность, исключить сбои и брак во время эксплуатации.
Этапы шефмонтажных работ
0
Осмотр производственной площадки
1
Монтаж оборудование на постоянное место
2
Проверка работоспособности всех узлов и агрегатов
3
Настройка оборудования
4
Изготовление пробной партии продукции
5
Инструктаж и практическое обучение персонала
6
Передача оборудования в производственный цикл
Запчасти для порошково-покрасочного оборудования
Программа по обеспечению запасными частями и расходными материалами позволяет обслуживать клиентов на высоком уровне. Постоянное изучение потребностей наших заказчиков дает возможность прогнозировать потребности клиентов и вовремя пополнять складские запасы наиболее востребованным ассортиментом. А в случае отсутствия необходимой запчасти на нашем складе ее всегда можно заказать на заводе-производителе.
Доставка
Доставка осуществляется во все города РФ и стран ЕврАзЭС. Мы организуем доставку любым удобным видом транспорта.
Перед передачей в перевозку все грузы проходят проверку на складе и составляется фотоотчет.
На все грузы наносится маркировка.
Собственный парк автотранспорта.
Собственный парк контейнеров.
Лизинг
Лизинг - это финансовый инструмент, позволяющий предприятию получить в пользование технику или оборудование, не отвлекая денежных средств из оборота компании.
Получив вашу заявку на лизинг, мы отправим ее на рассмотрение всем лизинговым компаниям, с которыми мы сотрудничаем. Вам останется лишь выбрать наиболее подходящее предложение.