Каталог
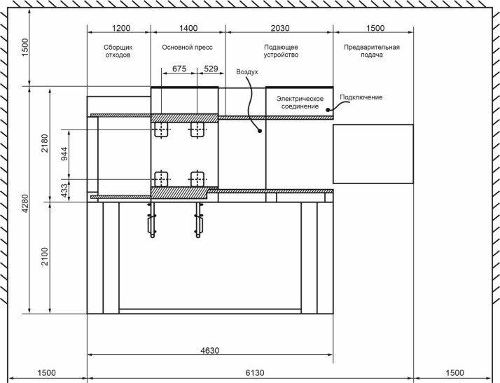
Автоматический пресс для высечки картона TECHNOCUT 1050
| Модель | TECHNOCUT 1050 |
| Плотность бумаги (г/м²) | 80 |
| Плотность картона (г/м²) | 2000 |
| Толщина гофрокартона (мм) | 4 |
| Минимальный размер листа (мм) | 350 х 400 |
| Максимальный размер листа (мм) | 740 х 1050 |
| Максимальная скорость высечки (листов/ч) | 7500 |
| Максимальное давление при высечке (т) | 300 |
| Максимальный размер высечки (мм) | 730 х 1040 |
| Максимальная высота стопы на самонакладе (мм) | 1650 |
| Максимальная высота стопы на приемке (мм) | 1300 |
| Мощность (кВт) | 25 |
| Давление сжатого воздуха (бар) | 6 |
| Мощность воздушного компрессора (м³/час) | 15 |
| Объем баллона с воздухом (л) | 100 |
| Габаритные размеры (м) | 6,17 х 4,2 х 2,45 |
| Вес (т) | 16 |
Шефмонтажные и пусконаладочные работы
При поставке данного оборудования возможен шеф-монтаж нашими инженерами.
Шефмонтажные работы являются одним из важных этапов при создании нового производства, позволяя правильно ввести в эксплуатацию оборудование, сохранив его работоспособность и надежность, исключить сбои и брак во время эксплуатации.
Этапы шефмонтажных работ
0
Осмотр производственной площадки
1
Монтаж оборудование на постоянное место
2
Проверка работоспособности всех узлов и агрегатов
3
Настройка оборудования
4
Изготовление пробной партии продукции
5
Инструктаж и практическое обучение персонала
6
Передача оборудования в производственный цикл
Запчасти для автоматических высекальных машин
Программа по обеспечению запасными частями и расходными материалами позволяет обслуживать клиентов на высоком уровне. Постоянное изучение потребностей наших заказчиков дает возможность прогнозировать потребности клиентов и вовремя пополнять складские запасы наиболее востребованным ассортиментом. А в случае отсутствия необходимой запчасти на нашем складе ее всегда можно заказать на заводе-производителе.
Доставка
Доставка осуществляется во все города РФ и стран ЕврАзЭС. Мы организуем доставку любым удобным видом транспорта.
Перед передачей в перевозку все грузы проходят проверку на складе и составляется фотоотчет.
На все грузы наносится маркировка.
Собственный парк автотранспорта.
Собственный парк контейнеров.
Лизинг
Лизинг - это финансовый инструмент, позволяющий предприятию получить в пользование технику или оборудование, не отвлекая денежных средств из оборота компании.
Получив вашу заявку на лизинг, мы отправим ее на рассмотрение всем лизинговым компаниям, с которыми мы сотрудничаем. Вам останется лишь выбрать наиболее подходящее предложение.